Miroslava teren 803mp cu Autorizatie de Constructie pentru duplex
90 000
EUR
Valabil din 12/16/2025 6:51:07 AM
Repostat automat
Repostat automat
1
1 / 7
Specificații
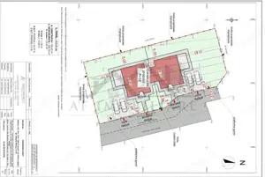
Suprafata terenului
803
m2
Front stradal
24
Numar fronturi
1
Latime drum acces
5
Utilitati generale
Canalizare, Apa, Gaz, Curent
Descriere
Ag. A.F.Imobiliare va propune spre vanzare un teren in suprafata de 803mp intravilan, suprafata plana, deschidere de 40ml la calea de acces, toate utilitatile sunt aproape, zona de case noi si aproape de sos. principala.
Terenul este amplasat pe un fundac, la 200ml de sos. principala Constantin Langa apropape de magazinul de materiale de constructie Trans Anapet, statie de autobuz aproape, doar 500ml de LIDL, acces rapid spre sos de centura.
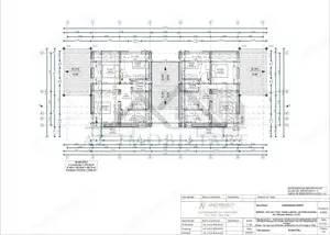
Proiect cu Autorizatie de Construire pentru duplex P+1E (1 2 duplex = Sc-150,47mp
Su- 117,70mp Parter = hol - casa scarii - baie - zona de zi - zona de luat masa - iesire pe terasa - terasa - 14,61mp - lateral spatiu de depozitare.
Etaj = 3 dormitoare - baie mare cu cada - dressing - hol - casa scarii - balcon)
Pret = 90000euro fix
Comision Ag 3%
Terenul este amplasat pe un fundac, la 200ml de sos. principala Constantin Langa apropape de magazinul de materiale de constructie Trans Anapet, statie de autobuz aproape, doar 500ml de LIDL, acces rapid spre sos de centura.
Proiect cu Autorizatie de Construire pentru duplex P+1E (1 2 duplex = Sc-150,47mp
Su- 117,70mp Parter = hol - casa scarii - baie - zona de zi - zona de luat masa - iesire pe terasa - terasa - 14,61mp - lateral spatiu de depozitare.
Etaj = 3 dormitoare - baie mare cu cada - dressing - hol - casa scarii - balcon)
Pret = 90000euro fix
Comision Ag 3%
ID anunț: 1750674134
Raportează
Fă ofertă
Anunțuri recomandate
Pentru a contacta acest utilizator, intră în contul tău Publi24.ro sau creează-ți rapid un cont nou!