Teren 50,000mp Sacalaz /PUZ industrial

800 000 EUR
Valabil din 4/8/2026 6:34:15 AM
Specificații
Suprafata terenului
50000 m2
Front stradal
494.42
Numar fronturi
2
Amenajare strazi
De pamant
Alte caracteristici
La sosea, Oportunitati de investitie
Descriere
Oportunitate de Investiție Strategică în Zona Industrială Săcălaz – 5 Ha!

Descoperiți o proprietate de 5 hectare cu potențial vast, ideală pentru dezvoltări industriale și de servicii, situată strategic în Săcălaz, pe Drumul Național 59A (ieșirea spre Jimbolia). Acest teren generos oferă o combinație rară de accesibilitate directă la un drum național și o atmosferă liniștită, perfectă pentru afaceri care necesită un mediu de lucru calm și eficient, departe de aglomerația urbană.

Clasificat ca intravilan, terenul este pregătit pentru dezvoltare, având destinația clar definită prin PUZ pentru sedii de firme și locuințe de serviciu. Cu un POT de 40% și un CUT de 0.85, proprietatea oferă flexibilitate maximă pentru proiecte diverse, adaptate nevoilor pieței. Indiferent dacă vizați spații de producție, depozitare, birouri moderne sau chiar locuințe pentru angajați, acest teren este un fundament solid pentru viziunea dumneavoastră.

Avantajele cheie ale acestei proprietăți:
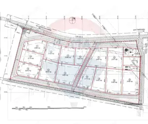
Locația sa strategică la DN 59A asigură vizibilitate excelentă și acces facil pentru transportul rutier, facilitând logistica și operativitatea afacerii. Terenul este inteligent compartimentat în 14 parcele distincte, pretabile pentru construcție, plus 2 parcele destinate infrastructurii rutiere și 3 cu alte destinații. Această structură este perfectă pentru dezvoltarea unui parc de afaceri modular, conceput pentru companii mici și mijlocii ce caută spații personalizate, ușor de accesat și de gestionat.

Unul dintre cele mai mari atuuri ale acestei locații este liniștea, un factor important pentru operațiunile care necesită concentrare și un mediu de lucru stabil, ferit de zgomotul și stresul marilor artere de circulație. Deși utilitățile nu sunt prezente pe amplasament, accesul este facil: țeava de gaz se află chiar lângă proprietate, iar rețeaua electrică este în proximitate imediată. Noul proprietar va fi responsabil pentru dezvoltarea drumurilor interne și racordarea la utilități, pași necesari pentru obținerea autorizației de construire. În plus, forma și topografia plană a terenului reduc semnificativ costurile și efortul de amenajare, permițând o demarare rapidă și eficientă a proiectului.

Această proprietate reprezintă o investiție excelentă pentru un dezvoltator vizionar, care dorește să creeze un pol de afaceri modern și liniștit, adaptat cererii în creștere de spații industriale și de servicii în regiunea Timișoarei. Odată finalizate drumurile și utilitățile, terenul va fi pregătit să găzduiască o comunitate vibrantă de businessuri.

ID anunț: 1753155644

Vezi detalii pe romimo.ro
Raportează
Fă ofertă

Anunțuri recomandate

Contactează vânzătorul
Pentru a reduce riscul mesajelor de tip spam, adresele de email nu sunt permise in mesagerie.
Caractere rămase: 3000
Adaugă fișier
? Fișiere acceptate: jpg, jpeg, png, doc, pdf, txt, xls, docx, xlsx, odt, heic, heif, cu o mărime maximă de 10Mb.

RE/MAX Ambassadors

Agenție imobiliară