Sapient | Spațiu comercial _ Pasajul Vulturul Negru
1 290 000
EUR
2829 EUR/m2
Valabil din 4/21/2026 12:59:35 PM
1 / 12
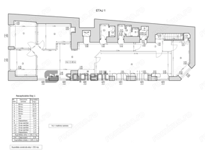
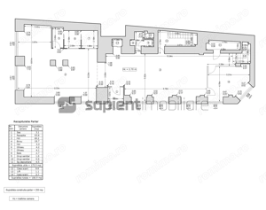
Specificații
Suprafata utila
456
m2
Numar camere
6 camere sau mai multe
Suprafata construita
683
m2
Anul constructiei
1908
Descriere
Spațiu Comercial de Excepție în Pasajul Vulturul Negru
Locație:
Situat strategic în Pasajul Vulturul Negru, un punct central ce leagă Piața Unirii, str. Independenței și str. Vasile Alecsandri.
✨ Caracteristici principale:
Suprafață Utilă: 456.30 mp
Suprafață Vitrată: 20.70 ml
Regim de Înălțime: S+P+E
Facilități excelente:
La mai puțin de 60 m distanță de o parcare subterană cu 460 de locuri pe 3 niveluri.
Detalii financiare:
Preț: 1.290.000,00 EUR net, negociabil.
Descriere:
Acest spațiu comercial generos este amplasat într-o zonă cu un potențial comercial deosebit. Cu o suprafață utilă ideală pentru diverse afaceri, oferă atât spații generoase la parter, cât și la etaj. Un avantaj major îl reprezintă proximitatea de parcare subterană, facilitând accesul clienților.
Despre noi:
Cu o experiență de 25 de ani pe piață, Sapient Imobiliare, parte a Sapient Group, este alegerea de încredere pentru servicii imobiliare complete. Oferim o gamă largă de servicii, inclusiv intermediere imobile, consultanță investiții imobiliare, evaluare, marketing, administrare proprietăți și consultanță tehnică și juridică.
Contact:
Pentru mai multe informații și programări pentru vizionare, vă rugăm să ne contactați la +40 (728) 115 432.
Locație:
Situat strategic în Pasajul Vulturul Negru, un punct central ce leagă Piața Unirii, str. Independenței și str. Vasile Alecsandri.
✨ Caracteristici principale:
Suprafață Utilă: 456.30 mp
Suprafață Vitrată: 20.70 ml
Regim de Înălțime: S+P+E
Facilități excelente:
La mai puțin de 60 m distanță de o parcare subterană cu 460 de locuri pe 3 niveluri.
Detalii financiare:
Preț: 1.290.000,00 EUR net, negociabil.
Descriere:
Acest spațiu comercial generos este amplasat într-o zonă cu un potențial comercial deosebit. Cu o suprafață utilă ideală pentru diverse afaceri, oferă atât spații generoase la parter, cât și la etaj. Un avantaj major îl reprezintă proximitatea de parcare subterană, facilitând accesul clienților.
Despre noi:
Cu o experiență de 25 de ani pe piață, Sapient Imobiliare, parte a Sapient Group, este alegerea de încredere pentru servicii imobiliare complete. Oferim o gamă largă de servicii, inclusiv intermediere imobile, consultanță investiții imobiliare, evaluare, marketing, administrare proprietăți și consultanță tehnică și juridică.
Contact:
Pentru mai multe informații și programări pentru vizionare, vă rugăm să ne contactați la +40 (728) 115 432.
ID anunț: 1776766086
Raportează
Fă ofertă
Anunțuri recomandate
Pentru a contacta acest utilizator, intră în contul tău Publi24.ro sau creează-ți rapid un cont nou!