3D! Rafinat,confortabil,decomandat,ales mobilat si echipat, Tractorul, Brasov
134 000
EUR
2528 EUR/m2
Valabil din 4/21/2026 11:14:47 PM
1 / 9
Specificații
Clasa energetica
A
Suprafata utila
53
m2
Etaj
Compartimentare
decomandat
Confort
1
Anul constructiei
2022
Incalzire
centrala proprie
Numar niveluri
10
Structura de rezistenta
Caramida
Numar bucatarii
1
Numar balcoane
1
Destinatie
Rezidential
Amenajare strazi
Asfaltate
Utilitati generale
Canalizare, Apa, Gaz, Curent
Acces internet
Fibra optica
Usa intrare
Metal
Izolatii termice
Exterior
Podele
Gresie, Parchet
Electrocasnice
Hota, Masina de spalat rufe, Frigider, Aragaz
Descriere
Comision cumparator: 2%+TVA din valoarea de tranzactionare.
ASCENDENT IMOBILIARE
va propune spre vanzare un apartament deosebit , structurat pe doua camere, situat in cartierul Tractorul, intr-o constructie noua.
Pentru confortul dumneavoastra va invitam sa faceti o prima vizionare, chiar acum, prin accesarea turului virtual, pe care vi le- am pregatit, cu drag:
EXPLOREAZA VIRTUAL: https: my.matterport.com show ?m=ijhYkG8KwpJ
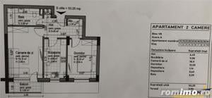
Apartamentul se desfasoara pe o suprafata utila de 53.25 mp cu un balcon in suprafata de 3.90 mp.
Compozitia ergonomica, dupa cum urmeaza: hol, baie, living, balcon, bucatarie, dormitor si doua spatii pentru depozitare.
Imobilul se vinde mobilat si utilat.
Fiind situat la etaj superior beneficiaza de o priveliste incantatoare atat catre Dealul Lempes cat si catre Tampa.
Va asteptam la vizionare!
Consilieri dedicati acestei oferte:
domnul Catalin Dumitriu
0737981623
Detalii, fotografii suplimentare si alte oferte similare exclusive:
www.ascendentimobiliare.ro
ASCENDENT IMOBILIARE
va propune spre vanzare un apartament deosebit , structurat pe doua camere, situat in cartierul Tractorul, intr-o constructie noua.
Pentru confortul dumneavoastra va invitam sa faceti o prima vizionare, chiar acum, prin accesarea turului virtual, pe care vi le- am pregatit, cu drag:
EXPLOREAZA VIRTUAL: https: my.matterport.com show ?m=ijhYkG8KwpJ
Apartamentul se desfasoara pe o suprafata utila de 53.25 mp cu un balcon in suprafata de 3.90 mp.
Compozitia ergonomica, dupa cum urmeaza: hol, baie, living, balcon, bucatarie, dormitor si doua spatii pentru depozitare.
Imobilul se vinde mobilat si utilat.
Fiind situat la etaj superior beneficiaza de o priveliste incantatoare atat catre Dealul Lempes cat si catre Tampa.
Va asteptam la vizionare!
Consilieri dedicati acestei oferte:
domnul Catalin Dumitriu
0737981623
Detalii, fotografii suplimentare si alte oferte similare exclusive:
www.ascendentimobiliare.ro
ID anunț: 1776714312
Raportează
Fă ofertă
Anunțuri recomandate
Pentru a contacta acest utilizator, intră în contul tău Publi24.ro sau creează-ți rapid un cont nou!