Apartament cu 3 camere decomandat, situat la etajul 7, in Micro 20.

77 000 EUR 1185 EUR/m2
Valabil din 3/31/2026 9:49:05 AM
Specificații
Suprafata utila
65 m2
Numar camere
3 camere
Etaj
Compartimentare
decomandat
Anul constructiei
1976
Descriere
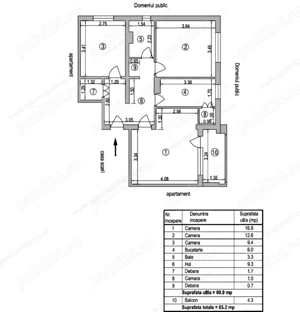
ProActiv Imobiliare vă propune spre vânzare un apartament cu 3 camere decomandat, situat la etajul 7 al unui bloc cu 10 niveluri, prevăzut cu lift, în cartierul Micro 20. Locuința are o suprafață totală de 65,2 mp și beneficiază de o compartimentare practică și funcțională.
Apartamentul este orientat S-E, oferind lumină naturală pe tot parcursul zilei, iar dormitorul mic are orientare N-E.
Imobilul dispune de:
centrală termică proprie;
aparat de aer condiționat;
ușă metalică la intrare;
uși interioare schimbate;
baie cu fereastră pentru aerisire natural;
balcon amplasat la sufragerie.
Poziționarea excelentă oferă acces rapid către toate punctele de interes: mijloace de transport în comun, centre comerciale, unități de învățământ, piață, parcuri și alte facilități urbane.
Pentru mai multe detalii sau pentru programarea unei vizionări, vă stăm la dispoziție telefonic.


ID anunț: 1771318431

Vezi detalii pe romimo.ro
Raportează
Fă ofertă

Anunțuri recomandate

Contactează vânzătorul
Pentru a reduce riscul mesajelor de tip spam, adresele de email nu sunt permise in mesagerie.
Caractere rămase: 3000
Adaugă fișier
? Fișiere acceptate: jpg, jpeg, png, doc, pdf, txt, xls, docx, xlsx, odt, heic, heif, cu o mărime maximă de 10Mb.