Teren Baneasa Soseaua Bucuresti Ploiesti 69

1 800 000 EUR
Valabil din 2/25/2026 12:13:37 PM
Specificații
Suprafata terenului
12000 m2
Descriere

ALV INSOLVENTA SPRL, membru al Uniunii Nationale a Practicienilor in Insolventa din Romania, inregistrata in Registrul Formelor de Organizare sub nr. RFO II-0906, avand sediul în Mun. Bucureşti, B-dul Timșoara, nr. 26, Plaza Romania Offices, etaj 1, biroul 108, sector 6, tel: ,, fax : 40 , email: , ,
în calitate de Lichidator judiciar al EKA DEVELOPMENT SRL în faliment, in bankruptcy, en faillite, cu sediul social în Mun. Bucureşti, Str. Daniel Danielopolu, Parter, ap. 2, cam.2, Sector 1, înregistrată în Registrul Comerţului sub nr. J40 763 2010, având C.U.I. 21580032, atribut fiscal RO, organizează licitație publică, în temeiul Legii nr. 85 2006, pentru valorificarea în bloc a următoarelor active imobiliare:
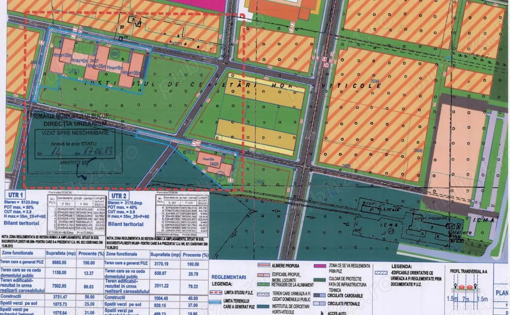
A. Teren intravilan în suprafață de 8.133,54 mp, situat în București, Șos. București-Ploiești nr. 69N, sector 1, categoria curți-construcții, identificat prin nr. cadastral 24827, înscris în CF nr. 78380 București Sector 1, IE 232077;

B. Teren intravilan în suprafață de 3.170 mp, situat în București, Șos. București-Ploiești nr. 69P, sector 1, categoria curți-construcții, identificat prin nr. cadastral 24826, înscris în CF nr. 78375 București Sector 1, IE 231243;

C. Teren intravilan în suprafață de 527,14 mp, situat în București, Șos. București-Ploiești nr. 69L, sector 1, categoria curți-construcții, identificat prin nr. cadastral 23861 2, înscris în CF nr. 78132 București Sector 1, IE 231856;

Prețul de pornire la licitație va fi de 1.800.000 EURO la care se va aplica TVA, conform regimului fiscal aplicabil la data vânzării.

Licitația va avea loc în data de 12 martie 2026, ora 16.00, la sediul lichidatorului judiciar din București, B-dul Timișoara, nr. 26, Anchor Business Centre, etaj 1 birou 108, sector 6.

Daca nu se va reuși valorificarea, licitația se va repeta în 26 martie, 9 și 23 aprilie, 7 și 21 mai, 11 și 18 iunie, 9 și 23 iulie 2026, , la aceeași oră 16, în aceeași locație.

ID anunț: 1772014451

Vezi detalii pe romimo.ro
Raportează
Fă ofertă

Anunțuri recomandate

Contactează vânzătorul
Pentru a reduce riscul mesajelor de tip spam, adresele de email nu sunt permise in mesagerie.
Caractere rămase: 3000
Adaugă fișier
? Fișiere acceptate: jpg, jpeg, png, doc, pdf, txt, xls, docx, xlsx, odt, heic, heif, cu o mărime maximă de 10Mb.